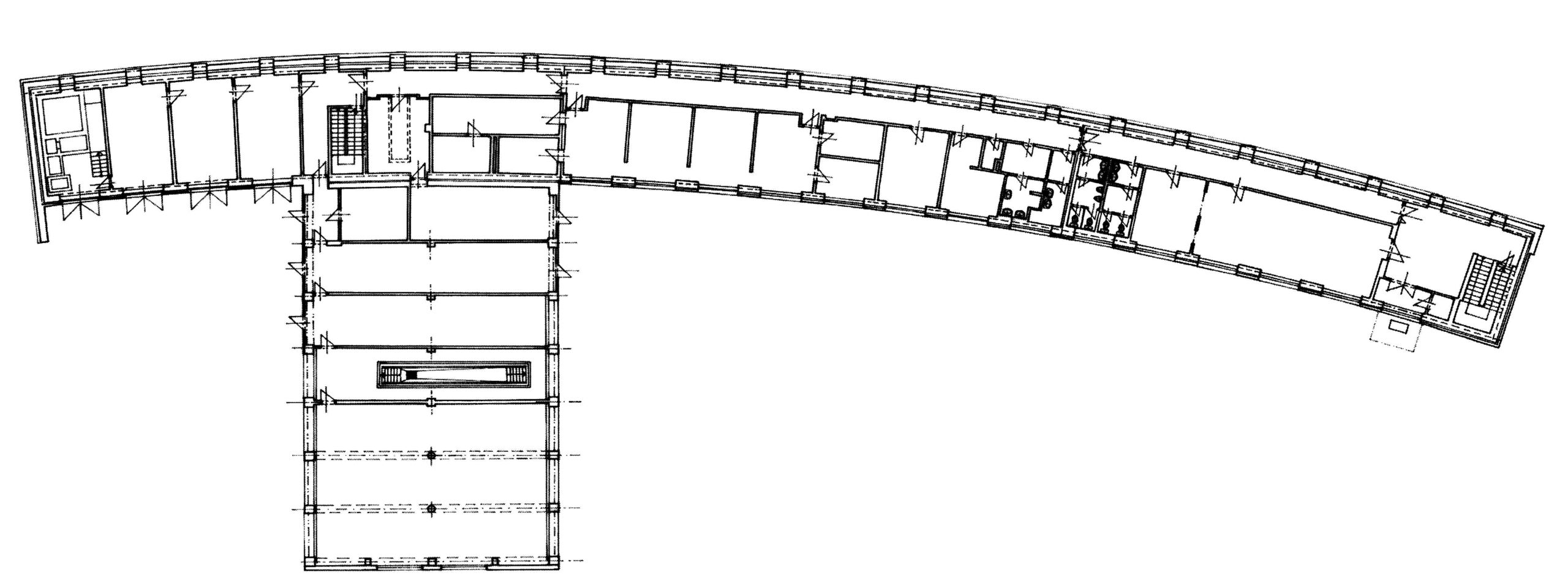
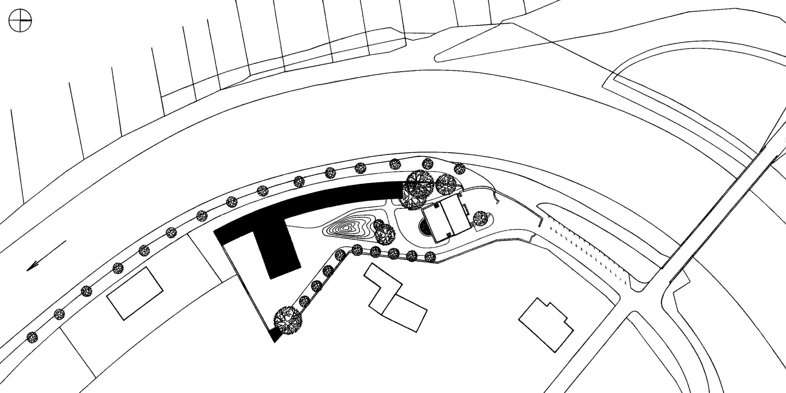
Administrativní budova Povodí Moravy
cena „Stavba desetiletí“ Olomoucka v kategorii novostavba, 1999
nominace na cenu za architekturu EU – Mies van der Rohe Pavilion Award, 1997
autor: Petr Hrůša, Petr Pelčák
investor: Povodí Moravy a.s.
IN: 150 mil. Kč
realizace: 1995
foto: Pavel Štecha
publikace: Česká architektura a její přísnost, Padesát staveb 1989-2004, Rostislav Švácha, str. 71-75, Česká architektura 1989/1999, Petr Kratochvíl, Pavel Halík, str. 60-62
odkaz: archiweb









