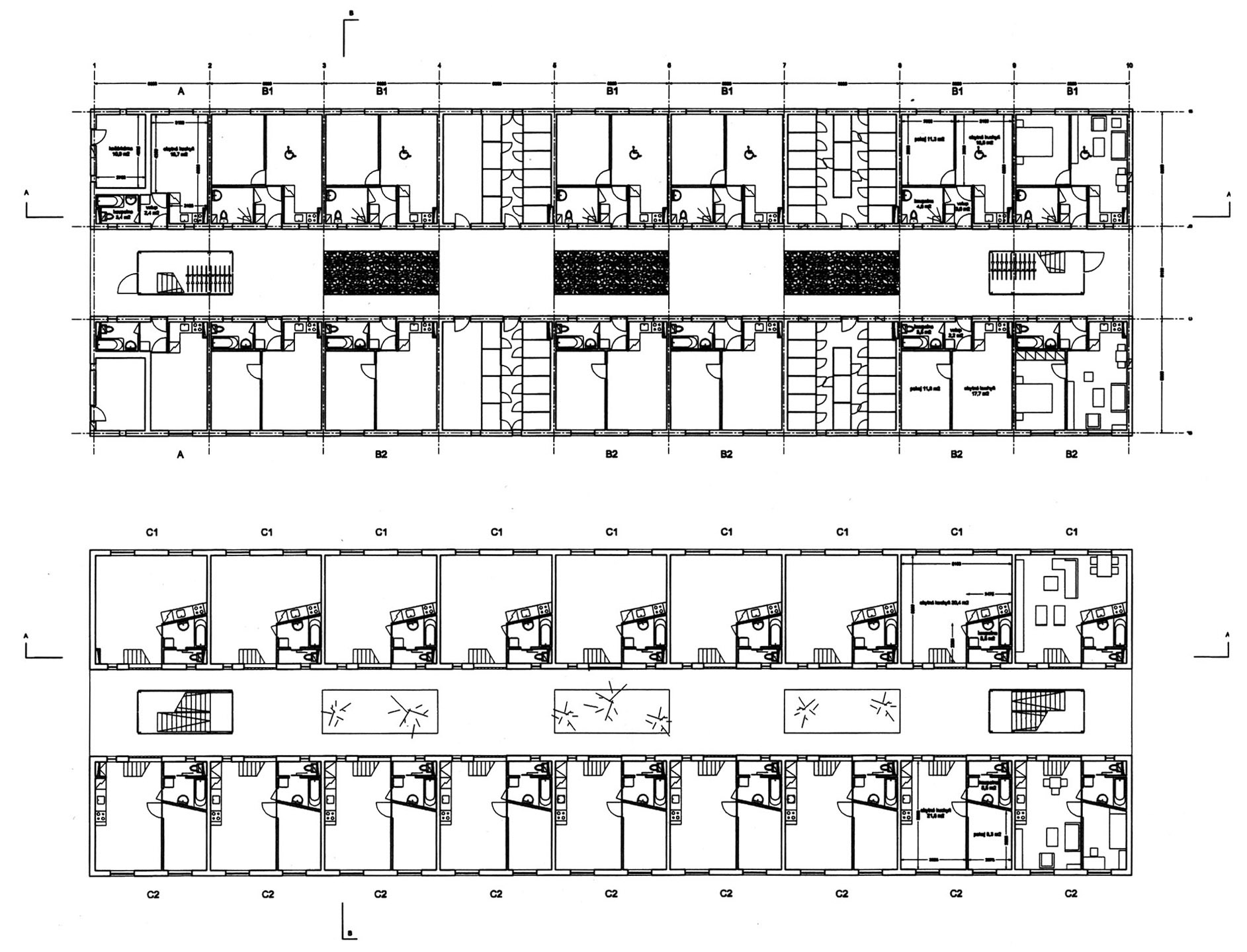
Startovní byty Říčany u Prahy
vítězný návrh, oceněný zvláštní cenou Ministra pro místní rozvoj v kategorii nájemního bydlení, 1999
autor: Petr Hrůša, Petr Pelčák
zadavatel: Ministerstvo pro místní rozvoj
realizace: 1999

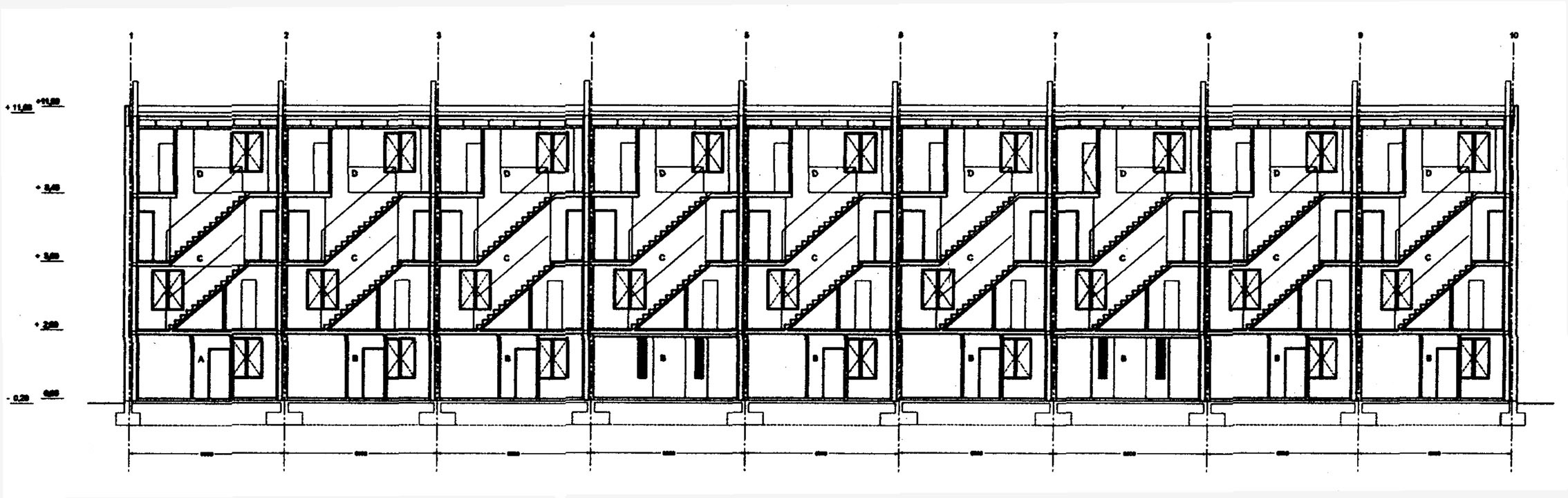
vítězný návrh, oceněný zvláštní cenou Ministra pro místní rozvoj v kategorii nájemního bydlení, 1999
autor: Petr Hrůša, Petr Pelčák
zadavatel: Ministerstvo pro místní rozvoj
realizace: 1999
