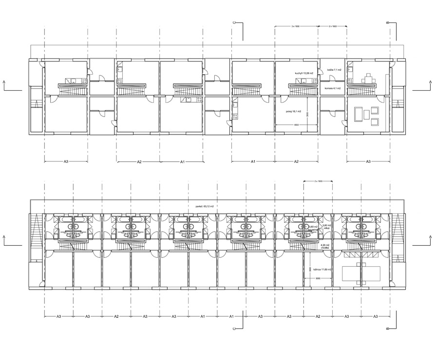
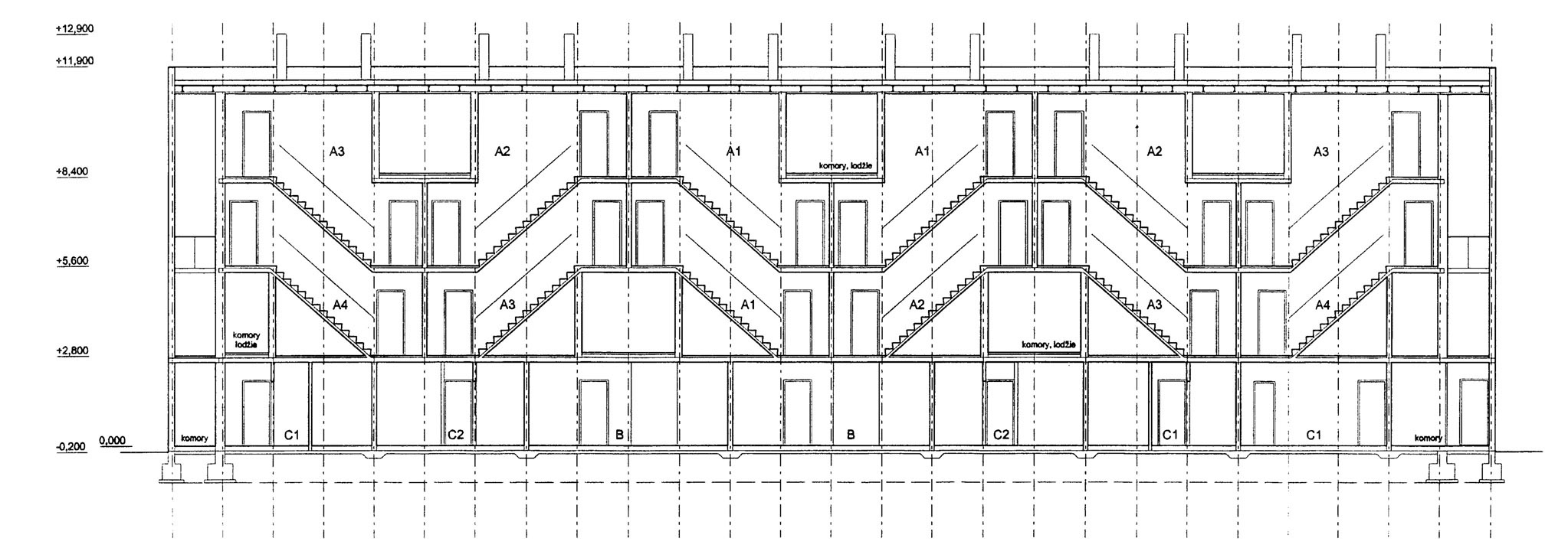
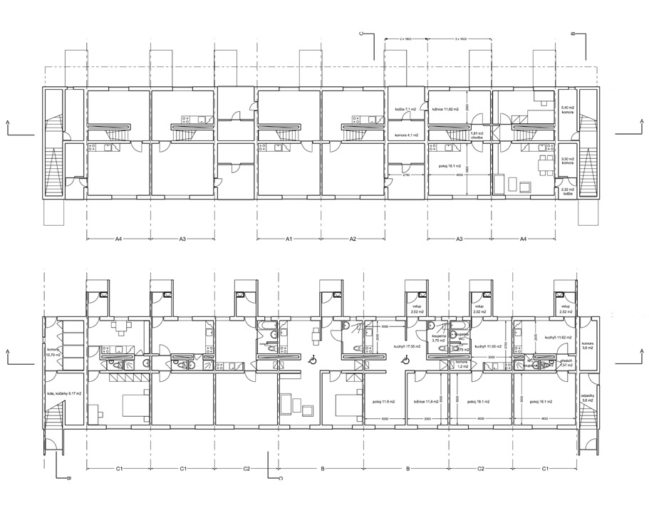
Startovní byty, Třeboň

autoři: Petr Hrůša, Petr Pelčák

realizace: 1999, 3.cena

zadavatel: Ministerstvo pro místní rozvoj

ocenění: 3.cena